• 黄瓜视频APP黄,黄瓜视频污,黄瓜视频在线播放,黄瓜视频APP下载地址

    伊犁路文广大厦小整层786平,靠近广播大厦

    分享
    17.45 万元/月
    • 单价:7.3元/㎡/天
    • 物业费:33.0元/㎡/月
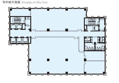
    786㎡
    建筑面积
    70-100人
    容纳工位
    标准交房
    装修
    • 长 宁-虹桥古北
    • 10号线-伊犁路、15号线-红宝石路
    • 文广大厦

    房源专属顾问为您服务

    杨亦晗Cassie

    13167276699
    预约看房

    公共交通

    Public transit

    文广大厦

    长 宁虹桥古北虹桥路1380号

    网站地图