• 黄瓜视频APP黄,黄瓜视频污,黄瓜视频在线播放,黄瓜视频APP下载地址

    裕景国际大厦出租150平精装家具拎包入住

    分享
    2.54 万元/月
    • 单价:5.5元/㎡/天
    • 物业费:28.0元/㎡/月
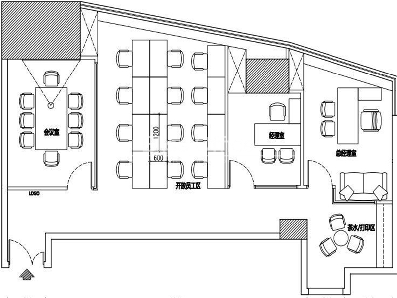
    152㎡
    建筑面积
    15人
    容纳工位
    带装修家具
    装修
    • 浦 东-洋泾联洋
    • 4号线-浦东大道
    • 裕景国际大厦

    房源专属顾问为您服务

    杨亦晗Cassie

    13167276699
    预约看房

    公共交通

    Public transit

    裕景国际大厦

    浦 东洋泾联洋浦东大道555号

    网站地图