• 黄瓜视频APP黄,黄瓜视频污,黄瓜视频在线播放,黄瓜视频APP下载地址

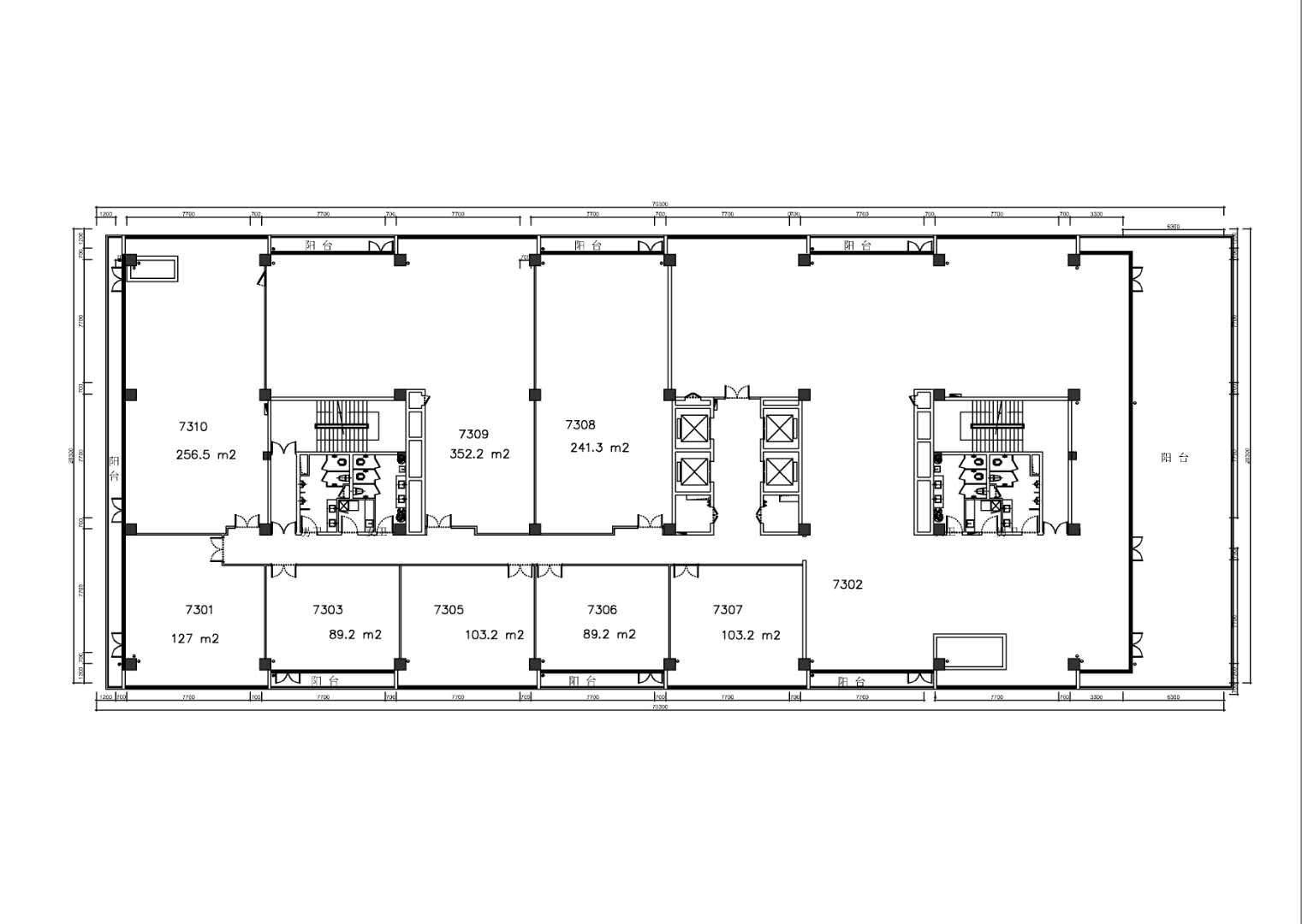
    大宁中心广场3期,带超大露台,352平带装修现状交付

    分享
    4.50 万元/月
    • 单价:4.2元/㎡/天
    • 物业费:21.0元/㎡/月
    352㎡
    建筑面积
    40-60人
    容纳工位
    有装修无家具
    装修
    • 闸 北-大宁
    • 1号线-上海马戏城
    • 宁汇广场•大宁中心广场三期

    房源专属顾问为您服务

    徐佳乐Jerry

    13052210023
    预约看房

    公共交通

    Public transit

    宁汇广场•大宁中心广场三期

    闸 北大宁灵石路718号

    网站地图